| 高考省级导航 | |
|
|
|
高中地理知识点大全《地理环境的地域分异规律》试题特训(2017年最新版)(一)
A.气温的年较差 B.年内降水分配不均 C.降水集中季节不同 D.最冷月平均气温 3、单选题 下图示意新疆伊犁果子沟大桥景现,其拍摄时间为夏季上午10点前后,大桥附近的山都具有“阴阳脸”的特征,即山体植被一侧是草原,而另一侧是针叶林。据此完成下列各题。 |
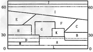
4、综合题 读“亚欧大陆自然带示意图”,回答下列问题:
(1)自然带名称分别为:
H________________、E__________、B______________、I______________。
(2)自然带类型相同的是____________。(字母填代号)
(3)自然带I,在大陆东部向南延伸的主要原因是___________,在大陆西部其南界比东部偏北的主要原因是_______________________________________。
5、单选题 读某地地形剖面图以及气温、降水量随地形分布示意图,回答有关图中山地的叙述中,正确的是
A.该山肯定位于北半球?
B.该山出现永久积雪的最低海拔约为5000米
C.A、B两坡随高度增加,降水量增加?
D.A、B两坡同一高度,降水量多的是A坡
| 【大 中 小】【打印】 【繁体】 【关闭】 【返回顶部】 | |
| 下一篇:高考地理知识点总结《人口增长与.. | |