微信搜索关注"91考试网"公众号,领30元,获取公务员、事业编、教师等考试资料40G!
2014年二级建造师执业资格考试市政公用工程管理与实务(真题)
一、单选题
1.下列城镇道路路基施工质量验收中,属于主控项目的是( )。
A.平整度
B.压实度
C.路堤边坡
D.宽度
2.可用于高级路面基层材料的是( )。
A.石灰稳定土
B.水泥稳定土
C.二灰稳定土
D.二灰稳定粒料
3.当工期紧,最适宜淤泥质黏性土路基处理方式的是( )。
A.重锤强夯
B.振动压实
C.水泥搅拌桩
D.塑料排水板加载预压
4.关于石灰粉煤灰稳定碎石混合料基层碾压不正确的是( )。
A.可用薄层贴补方法找平
B. 采用先轻型后重型压路机碾压
C.混合料每层最大压实厚度为200mm。
D.混合料可用沥青乳液进行养护
5.与沥青混合土面层相比,水泥混合土面层在荷载下强度和变形特点是( )。
A.抗弯强度大,弯沉变形大
B抗弯强度大,弯沉变形小
C.抗弯强度小,弯沉变形大
D.抗弯强度小,弯沉变形小
6.沥青混凝土面层中,直接承受行车荷载作用的是( )。
A.面层
B.基层
C.垫层
D.底基层
7.下列桥梁类型中,属于按用途分类的是 ( )。
A.石拱桥
B.人行桥
C.特长桥
D.刚架桥
8.可用冲击式打桩机施工的基坑围护结构是( )。
A.钢板桩
B.钻孔灌注桩
C.深层搅拌桩
D.地下连续墙
9.关于承重模板支架搭设的说法,正确的是( )。
A.脚手架宜利用支架搭设方法
B.支架底部应有良好的排水措施
C.支架搭设完毕后,即可投入使用
D.地基承载力不影响支架的搭设
10.暗挖隧道掘进开挖预留核心土法施工工艺流程中,紧接在“开挖环形供部—架立钢支撑—喷射混凝土—”后的工序是()。
A.封底
B.二次衬砌
C.接长钢支撑
D.开挖核心土和下台阶
11.基坑围护桩水平位移一次采用()监测。
A.水准仪
B.钢筋计
C.测斜仪
D.收计
12.关于明挖法施工的地下车站结构防水措施,属于主体防水措施的是()。
A.金属板
B.外贴式止水带
C.中埋式止水带
D.自防水混凝土
13.下列地下连续墙的接头形式中,属于刚性接头的是()。
A.锁口管接头
B.波纹管接头
C.楔形接头
D.钢筋承接式接头
14.下列施工内容中,属于排水下沉井施工内容的是()。
A.浇筑水下混凝土
B.降低地下水
C.水中挖土
D.水下封底
15.用以去除水中粗大颗粒杂质的给水处理方法是()。
A.过滤
B.软化
C.混凝沉淀
D.自然沉淀
16.燃气管道的防腐识别漆颜色为()。
A.黄色
B.绿色
C.蓝色
D.白色
17.供热管道保温材料进场后应进行()测定。
A.密度
B.含水率
C.导热系数
D.渣球含量
18.生活垃圾填埋处理工程中,泥质防水层施工管理技术的核心是掺加()的拌合土层施工技术。
A.石灰土
B.砂砾土
C.水泥土
D.膨润土
19.垃圾填埋场泥质防水层在拌合土摊铺碾压后应检验的项目是()。
A.压实度试验和渗水试验
B.压实度试验和强度试验
C.渗水试验和强度试验
D.渗水试验和刚度试验
20.关于钻孔灌注桩垂直度控制技术措施的说法,错误的是()。
A.施工现场应平整压实
B.钻机钻杆应保持竖直
C.钻头翼板大小应保持一直
D.在软硬土层交界面应高速钻进
二、多选题
21.关于道路工程土工合成材料特点的说法,正确的是()。
A.质量轻
B.抗拉强度较低
C.整体连续性好
D.耐腐蚀
E.施工工艺复杂
22.桥台的作用( )。
A.传递桥跨结构恒载
B.解决与路堤衔接问题
C.防止河道冲刷
D.承受台后路堤土压力
E.传递汽车货载
23.关于钢筋接头的说法正确的是( )。
A.钢筋接头应优先选用闪光对焊
B.受拉主筋宜采用绑扎连接
C.HRB335钢筋可采用机械连接接头
D.同一根钢筋上宜少设接头
E.钢筋接头应设在构件最大负弯矩处
24.基坑开挖时,用于粉土地层降水深度能够达到5m以上的降水方法有()。
A.集水明排
B.一、二级轻型井点
C.三级轻型井点
D.喷射井点
E.管井
25.高密度聚乙烯(HDPE)防渗膜的特点有()。
A.防渗性好
B.气候适应性差
C.化学稳定性好
D.焊接工艺复杂
E.使用寿命长
26.关于钢筋混凝土给排水构筑物的结构形式与特点的说法,正确的有()。
A.构件断面较厚
B.配筋率较低
C.抗渗性好
D.有良好的整体性
E.多采用地下水或半地下水形式
27.排水管道内局部结构型破坏及裂纹可采用的修补方法有( )。
A.补丁法
B.局部软衬法
C.灌浆法
D.机器人法
E.缠绕法
28.下列土层中,采用高压喷射注浆法加固效果较好的有()。
A.软塑黏性土
B.硬黏性土
C.腐殖土
D.砂土
E.素填土
29.关于钢板桩围堰施工的说法,正确的有()。
A.适用于深水基坑工程
B.在粘土层施工时应使用射水下沉方法
C.钢板桩的锁扣应用止水材料捻缝
D.施打时应由导向设备
E.施打顺序一般从上游向下游合龙
30.下列施工安全检查项目中,属于季节性专项检查的是有()。
A.防暑降温
B.施工用电
C.高处作业
D.防台防汛
E.防冻防滑
三、案例题
(一)背景资料
某公司承建一道路工程,道路全长3000m,穿过部分农田和水塘,需要借土回填和抛石挤淤。工程采用工程量清单计价,合同约定分部分项工程量增加(减少)幅度在15%以内执行原有综合单价。工程量增幅大于15%时,超过部分按原综合单价的0.9倍计算;工程量减幅大于15%时,减少后剩余部分按原综合单价的1.1倍计算。
项目部在路基正式压实前选取了200m作为试验段,通过实验确定了合适吨位的压路机和压实方式。工程施工中发生如下事件:
事件一:项目技术负责人现场检查时发现压路机碾压时先高后低,先快后慢,先静后振,由路基中心向边缘碾压。技术负责人当即要求操作人员停止作业,并指出其错误,要求改正。
事件二:路基施工期间,有块办理过征地手续的农田补偿问题发生纠纷,导致施工无法进行。为此延误工期20天,施工单位提出工期和费用索赔。
事件三:工程竣工结算时,借土回填和抛石挤淤工程量变化情况如表1-1所示:
表1-1 工程量变化情况表
|
分部分项工程 |
综合单价
(元/m2) |
清单工程量
(m2) |
实际工程量
(m2) |
|
借土回填 |
21 |
25000 |
30000 |
|
抛石挤淤 |
76 |
16000 |
12800 |
问题:
1.除确定合适吨位的压路机和压实方式外,试验段还应确定哪些技术参数。
2.分别指出事件一中压实作业的错误之处并写出正确做法
3.事件二中,施工单位的索赔是否成立?说明理由。
4.分别计算事件三借土回填和抛石挤淤的费用。
(二)背景资料
某公司承建一埋地燃气管道工程,采用开槽埋管施工,该工程网络计划工作的逻辑关系见表2-1:
表2-1 网络计划工作逻辑关系
|
工作名称 |
紧前工作 |
紧后工作 |
|
A1 |
----- |
B1、A2 |
|
B1 |
A1 |
C1、B2 |
|
C1 |
B1 |
D1、C2 |
|
D1 |
C1 |
E1、D2 |
|
E1 |
D1 |
E2 |
|
A2 |
A1 |
B2 |
|
B2 |
B1、A2 |
C2 |
|
C2 |
C1、B2 |
D2 |
|
D2 |
D1、C2 |
E2 |
|
E2 |
E1、D2 |
---- |
项目部按照表2-1绘制网络计划如图2-1所示:

网络计划中的E1、E2工作为土方回填和敷设警示带,管道沟槽回填土的部位划分为Ⅰ、Ⅱ、Ⅲ取,如图2-2所示:

回填土中有粗砂、碎石土、灰土可供选择。
(三)背景资料
A 公司承建一项 DN400mm 应急热力管线工程,采用钢筋混凝土高支架方式架设,利用波纹管补偿器进行热位移补偿。
在进行图纸会审时,A 公司技术负责人提出:以前施工过钢筋混凝土中支架架设 DN400mm 管道的类似工程,其支架配筋与本工程基本相同,故本工程支架的配筋可能偏少,请设计予以考虑。设计人员现场答复:将对支架进行复核,在未回复之前,要求施工单位按图施工。
A 公司编制了施工组织设计,履行了报批手续后组织钢筋混凝土支架施工班组和管道安装班组进场施工设计.
对支架图纸复核后,发现配筋确有问题,此时部分支架已施工完成,经与建设单位协商,决定对支架进行加固处理。设计人员口头告知 A公司加固处理方法,要求 A 公司按此方法加固即可。
钢筋混凝土支架施工完成后,支架施工班组通知安装班组进行安装。
安装班组在进行对口焊接时,发现部分管道与补偿器不同轴,且对口错边量较大。经对支架进行复测,发现存在质量缺陷(与支架加固无关),经处理合格。
问题:
1.列举图纸会审的组织单位和参加单位,指出会审后形成文件的名称。
2.针对支架加固处理,给出正确的变更程序。
3.指出补偿器与管道不同轴及错边的危害。
4.安装班组应对支架的哪些项目进行复测?
(四)背景资料
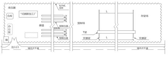
某公司建一座市政桥梁工程,桥梁上部结构为9孔30m后张法预应力混凝土T梁,桥宽横断面T梁12片,T梁支座中心线距梁端600mm,T梁横断面如图4-1所示。

项目部进场后,拟在桥位线路上现有城市次干道旁租地建设T梁预制场,平面布置如图4-2所示,同时编制了预制场的建设方案:(1)混凝土采用商品混凝土;(2)预测台座数量按预制工期120天、每片梁预制占用台座时间为10天配置;(3)在T梁预制施工时,现浇湿接缝钢筋不弯折,两个相邻预制台座间要求具有宽度2m的支模及作业空间;(4)露天钢材堆场经整平碾压后表面铺砂厚50mm;(5)由于该次干道位于城市郊区,预制场用地范围采用高1.5m的松木桩挂网维护。

监理审批预制场建设方案时,指出预制场围护不符合规定,在施工过程中发生了如下事件:
事件一:雨季导致现场堆放的钢绞线外包装腐烂破损,钢绞线堆放场处于潮湿状态;
事件二:T梁钢筋绑扎、钢绞线安装、支模等工作完成并检验合格后,项目部开始浇筑T梁混凝土,混凝土浇筑采用从一端向另一端全断面一次性浇筑完成。
问题:
1、 全桥共有T梁多少片?为完成T梁预制任务最少应设置多少个预制台座?均需列式计算。
2、 列式计算图4-2中预制台座的间距B和支撑梁的间距L。(单位以m表示)
3、 给出预制场围护的正确做法
4、 事件一中的钢绞线应如何存放?
5、 事件二中,T梁混凝土应如何正确浇筑?
2014年二级建造师执业资格考试
市政公用工程管理与实务(参考答案及解析)
一、单选题
1.下列城镇道路路基施工质量验收中,属于主控项目的是(&nb