1、选择题 一辆做匀速直线运动的公共汽车,在t=0、t=4s末的照片分别如图a、图b所示,图c是车内横杆上悬挂的拉手环的状态图示.若t=0时,汽车刚启动.测得汽车质量m=6×103kg,汽车与路面间的动摩擦因数μ=0.5,θ=16°.根据题中提供的信息,可以估算出的物理量有( )

A.汽车的加速度
B.汽车的长度
C.汽车的额定功率
D.3s末汽车牵引力的功率
参考答案:A、从c图知道,汽车的加速度为a=mgtanθm=gtanθ,故A正确;
B、知道初速度为0和运动的时间,根据 s=12at2和v=v0+at可求出汽车的位移(即汽车的长度).故B正确.
D、因牵引力大小未知,所以功率无法求出.故CD错误.
故选AB
本题解析:
本题难度:简单
2、计算题 绳的一端固定,另一端系一质量为m=0.5kg的小球,绳长l=60cm,使小球在竖直平面内做圆周运动,重力加速度g=10m/s2,求:
(1)小球刚好能做圆周运动,在最高点的速度为多大?
(2)小球在最高点速率v=3m/s时,绳对小球的拉力为多大?
参考答案:解:(1)重力作圆周运动的向心力则?
?

(2)小球在最高点有?
?

本题解析:
本题难度:一般
3、选择题 关于北京和广州随地球自转的向心加速度,下列说法正确的是( )
A.它们的方向都沿半径指向地心
B.它们的方向都在平行赤道的平面内指向地轴
C.北京的向心加速度比广州的向心加速度大
D.北京的向心加速度比广州的向心加速度小
参考答案:BD
本题解析:
本题难度:简单
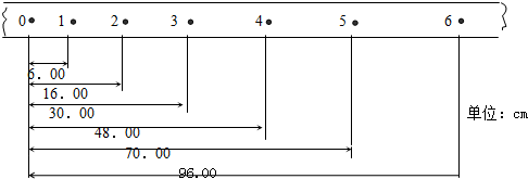
4、填空题 一打点计时器固定在倾角为θ的斜面上,一小车拖着穿过打点计时器的纸带从斜面上滑下,打出的纸带的一段如下图所示,纸带上0、1、2、3、4、5、6是按先后顺序打出的计数点,每相邻两个计数点之间还有四个实验点未画出.
(1)根据纸带上记录的数据判断小车是作______运动
(2)若小车作匀加速运动,则加速度大小a=______
(3)小车在计数点3所对应的速度大小为v=______

(4)关于打点计时器的时间间隔,下列是四位同学各自发表的看法,其中正确的是______.
A.电源电压越高,每打两个点的时间间隔就越短
B.纸带速度越大,每打两个点的时间间隔就越短
C.打点计时器连续打两个点的时间间隔由电源的频率决定
D.如果将交流电源改为直流电源,打点计时器连续打两个点的时间间隔保持不变.
参考答案:(1)x1=6.00cm,x2=(16.00-6.00)cm=10.00cm,x3=30.00cm-16.00cm=14.00cm,
x4=48.00cm-30.00cm=18.00cm,x5=70.00cm-48.00cm=22.00cm,x6=96.00cm-70.00cm=26.00cm.
可得:△x=x2-x1=x3-x2=x4-x3=4.00cm,即相邻的相等时间内的位移之差为常数,所以物体做的是匀加速直线运动.
(2)每相邻两个计数点之间还有四个实验点未画出,所以相邻的计数点间的时间间隔T=0.1s,根据匀变速直线运动的推论公式△x=aT2,
整理得:a=△xT2=4m/s2,
(3)根据匀变速直线运动中时间中点的速度等于该过程中的平均速度,v3=x3+x42T=1.6m/s
(4)AB、打点计时器的打点时间间隔与电源高低、纸带的速度无关,故AB错误.
C、打点计时器的打点时间间隔是由电源的频率决定,打点的时间间隔T等于频率的倒数,所以电源的频率越大,时间间隔T越小,故C正确.
D、如果将交流电源改为直流电源,打点计时器将不能工作,故D错误;故答案为:C
故答案为:匀加速直线运动(匀变速直线运动),4m/s2,1.6m/s,C
本题解析:
本题难度:一般
5、实验题 某同学用如图所示的实验装置研究小车在斜面上的运动。

(1)实验中,除打点计时器(含纸带、复写纸)、小车、平板、铁架台、导线及开关外,在下面的仪器和器材中,必须使用的有_____________。(填选项代号)
A.电压合适的50Hz交流电源
B.电压可调的直流电源
C.刻度尺
D.停表
E.天平
F.重锤
(2)实验中操作步骤中释放纸带和接通电源的先后顺序应该是:先_____________后_____________。
(3)实验中所用电源的频率为50Hz。选取合适的纸带如下图,以每5个点为一个记数点,分别记0、1、2……用刻度尺测得S1=2.00cm;S2=4.00cm;S3=6.00cm;S4=8.00cm;根据纸带中所给的信息,当打点计时器打下点“2”时的瞬时速度计算公式为_____________(每两个计数点间的时间间隔可用
表示),计算结果为
_____________m/s,小车加速度的计算公式为:_____________(每两个计数点间的时间间隔可用
表示),计算结果为
_____________ m/s2。(保留三位有效数字)

参考答案:(1)AC
(2)接通电源,释放纸带
(3)
,0.500,
,2.00
本题解析:
本题难度:困难