1、计算题 一个内壁光滑的圆柱形气缸,质量为M,底面积为S。缸内有一个质量为m的活塞,封闭了一定质量的理想气体,不计活塞厚度,温度为t0时,如果用绳子系住活塞将气缸悬挂起来,如图甲所示,气缸内气体柱的高为L1,如果用绳子系住气缸底,将气缸倒过来悬挂起来,如图乙所示,气缸内气体柱的高为L2,设两种情况下气缸都处于竖直状态,求:当时的大气压强。

2、简答题 如图所示是验证查理定律的DIS实验.与压强传感器相连的试管内装有密闭的空气和与温度传感器相连的热敏元件.
(1)在一次实验中,计算机屏幕显示如图所示的图象,所描绘的图线与纵坐标的交点表示______.
(2)与初始状态相比,压强传感器显示的压强变化量△P与试管内气体所降低的温度△t之间的关系图是______.


3、实验题 用DIS研究一定质量气体在温度不变时,压强与体积关系的实验装置如图1所示,实验步骤如下:
①把注射器活塞移至注射器中间位置,将注射器与压强传感器、数据采集器、计算机逐一连接;
②移动活塞,记录注射器的刻度值V,同时记录对应的由计算机显示的气体压强值p;
③用V-1/p图像处理实验数据,得到如图2所示图线。
? 
(1)为了保持封闭气体的质量不变,实验中采取的主要措施是_________________________________。
(2)为了保持封闭气体的温度不变,实验中采取的主要措施是___________________和____________________。
(3)如果实验操作规范正确,但如图所示的V-1/p图线不过原点,则代表____________________。
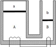
4、计算题 如图所示,两气缸AB粗细均匀,等高且内壁光滑,其下部由体积可忽略的细管连通;A的直径为B的2倍,A上端封闭,B上端与大气连通;两气缸除A顶部导热外,其余部分均绝热。两气缸中各有一厚度可忽略的绝热轻活塞a、b,活塞下方充有氮气,活塞a上方充有氧气;当大气压为p0,外界和气缸内气体温度均为7℃且平衡时,活塞a离气缸顶的距离是气缸高度的
,活塞b在气缸的正中央。

(
5、计算题 如图所示,一端封闭、粗细均匀的薄壁玻璃管开口向下竖直插在装有水银的水银槽内,管内封闭有一定质量的空气,水银槽的截而积上下相同,是玻璃管截面积的5倍,开始时管内空气柱长度为6cm,管内外水银面高度差为50cm。将玻璃管沿竖直方向缓慢上移(管口未离开槽中水银),使管内外水银而高度差变成60cm。(大气压强相当于75cmHg)求:
(1)此时管内空气柱的长度;
(2)水银槽内水银面下降的高度。
